Newton Distribution Frames

"MDF" or "IDF"

The tables below represent different dimensions and option available when ordering a Distribution Frame. Your final part number will be based off root part number, such as "005007", that determines the height , shelf width and number of Horizontal shelves. The next 2 number are refereed to as the "dash number". The dash number identifies the groups of verticals and designates whether the distribution frame is "MDF"or "IDF". The final two digits would then specify the color finish.

A complete part number would look like " 0050051030"

Double Sided D-Frames

Features for 005005 - 005016:

  • Same basic vertical design for "MDF" and "IDF" frames.
  • Swivel type mtg. Bracket accepts end or center mount terminal block.
  • Welded assembly with bolt-on frame components and accessories.
  • Universal terminal block mounting brackets and protector bars.
  • "MDF" and "IDF" verticals can be intermixed in a continuous frame line-up.

Double Sided Distribution Frame PDF

005005xxxx-0050016xxxx Top view
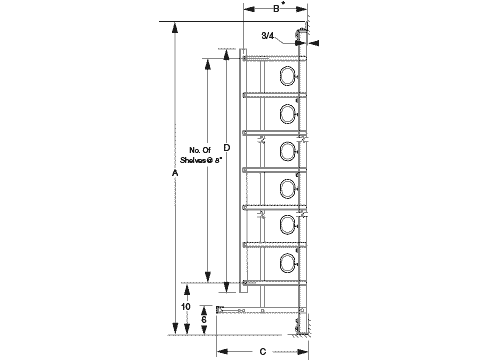
005005xxxx-0050016xxxx Side view. ** Dimension B is length of shelf including protector bar or terminal block swivel clips which are not shown.
005005xxxx-005016xxxx Front view

Notes

  • Xx= finish code; standard finish, xx= 30.
  • Frames supplied with adjustable guard rails, ground bar, and guide loops.
  • Customer should specify "IDF" verticals when using terminal blocks on vertical and horizontal sides of frame. "IDF" vertical comes equipped with newton universal swivel type terminal block mounting bracket.
  • Customer should specify "MDF" verticals when using protector/connectors on vertical side of frame and terminal block on horizontal side of frame. "MDF" vertical comes equipped with newton universal protector bar.
  • For applications requiring more than ten verticals, order two frames that total the required number. (For 19 verticals, as an example, order one each 00500509xx and one each 00500510xx.)
Start of Part # Height A Shelf Width B Guard Rail Width C D E F # of Horz. Shelves
206993 7′-0" 20-1/2" 30-1/2" - 36-1/2" 15-3/4" - 18-3/4" 10-3/4" 68" 9
207541 7′-0″ 26-1/2″ 36-1/2″ - 42-1/2″ 19-3/4″ - 22-3/4″ 14-3/4″ 68" 9
207545 7′-0 ″ 32-1/2″ 42-1/2″ - 48-1/2″ 23-3/4″ - 26-3/4″ 18-3/4″ 68" 9
005005 8′-0 ″ 20-1/2″ 30-1/2″ - 36-1/2″ 15-3/4″ - 18-3/4″ 10-3/4″ 76" 10
005006 8′-0 ″ 26-1/2″ 36-1/2″ - 42-1/2″ 19-3/4″ - 22-3/4″ 14-3/4″ 76" 10
005007 8′-0 ″ 32-1/2″ 42-1/2″ - 48-1/2″ 23-3/4″ - 26-3/4″ 18-3/4″ 76" 10
005008 9′-0 ″ 20-1/2″ 30-1/2″ - 36-1/2″ 15-3/4″ - 18-3/4″ 10-3/4″ 92" 11
005009 9′-0 ″ 26-1/2″ 36-1/2″ - 42-1/2″ 19-3/4″ - 22-3/4″ 14-3/4″ 92" 11
005010 9′-0 ″ 32-1/2″ 42-1/2″ - 48-1/2″ 23-3/4″ - 26-3/4″ 18-3/4″ 92" 11
005011 11′-6″ 20-1/2″ 30-1/2″ - 36-1/2″ 15-3/4″ - 18-3/4″ 10-3/4″ 124" 15
005012 11′-6″ 26-1/2″ 36-1/2″ - 42-1/2″ 19-3/4″ - 22-3/4″ 14-3/4″ 124" 15
005013 11′-6″ 32-1/2″ 42-1/2″ - 48-1/2″ 23-3/4″ - 26-3/4″ 18-3/4″ 124" 15
005014 11′-8″ 20-1/2″ 30-1/2″ - 36-1/2″ 15-3/4″ - 18-3/4″ 10-3/4″ 124" 15
005015 11′-8″ 26-1/2″ 36-1/2″ - 42-1/2″ 19-3/4″ - 22-3/4″ 14-3/4″ 124" 15
005016 11′-8″ 32-1/2″ 42-1/2” - 48-1/2″ 23-3/4″ - 26-3/4″ 18-3/4″ 124" 15
Dash Number Description G
1 Group of 1 vert. 7-7/8″
2 Group of 2 vert. 15-7/8″
3 Group of 3 vert. 23-7/8″
4 Group of 4 vert. 31-7/8″
5 Group of 5 vert. 39-7/8″
6 Group of 6 vert. 47-7/8″
7 Group of 7 vert. 55-7/8″
8 Group of 8 vert. 63-7/8″
9 Group of 9 vert. 71-7/8″
10 Group of 10 vert. 79-7/8″
11 Junction Kit --
12 Left End Guard --
13 Right End Guard --
30 "IDF" Vertical --
40 "MDF" Vertical --

Single Sided D-Frames

Features:

  • Same basic vertical design for "MDF" and "IDF" frames.
  • Swivel type mtg. Bracket accepts end or center mount terminal block.
  • Welded assembly with bolt-on frame components and accessories.
  • Universal terminal block mounting brackets and protector bars.
  • "MDF" and "IDF" verticals can be intermixed in a continuous frame line-up

Single Sided Distribution Frame PDF

005025xxxx-0050032xxxx Top view
005025xxxx-0050032xxxx Side view
** Dimension B is length of shelf including protector bar or terminal block swivel clips which are not shown. A dash number added to the root will
005025xxxx-0050032xxxx Front view

Notes:

  • XX= finish code; standard finish, xx= 30.
  • Frames supplied with adjustable guard rails, ground bar, and guide loops.
  • "IDF" verticals (for mounting terminal blocks) supplied with newton universal swivel type terminal block mounting brackets.
  • "MDF" verticals (for mounting protectors on vertical side and terminal blocks on horizontal side) supplied with newton universal protector bar assembly.
Start of Part # Height A Shelf Width B Guard Rail Width C D # of Horz. Shelves
005025 6′-0 ″ 9″ 13″ - 16″ 60″ 8
005026 6′-0 ″ 14″ 19″ - 22″ 60″ 8
005027 7′-0 ″ 9″ 13″ - 16″ 68″ 9
005028 7′-0 ″ 14″ 19″ - 22″ 68″ 9
005027 8′-0 ″ 9″ 13″ - 16″ 84″ 11
005030 8′-0 ″ 14″ 19″ - 22″ 84″ 11
005031 9′-0 ″ 9″ 13″ - 16″ 92″ 12
005032 9′-0 ″ 14″ 19″ - 22″ 92″ 12
Dash Number Description G
1 Group of 1 vert. 7-7/8″
2 Group of 2 vert. 15-7/8″
3 Group of 3 vert. 23-7/8″
4 Group of 4 vert. 31-7/8″
5 Group of 5 vert. 39-7/8″
6 Group of 6 vert. 47-7/8″
7 Group of 7 vert. 55-7/8″
8 Group of 8 vert. 63-7/8″
9 Group of 9 vert. 71-7/8″
10 Group of 10 vert. 79-7/8″
11 Junction Kit --
12 Left End Guard --
13 Right End Guard --
30 "IDF" Vertical --
40 "MDF" Vertical --

Quick Connect Frames

Wall Mount
Double Sided
Single Sided
Part Number Description
2172610030 Wall Mount
2172610130 Double Sided
2172610230 Single Sided

Distribution Frames Accessories

Part Number Description
0050390030 Main Frame End Clip Vert Side
0050410030 Snap On Cable Ring Vert
0050420030 Snap On Cable Ring Horizontal
0050450030 Obround Jumper Ring
0050510010 Protector Mounting Lug For Universal Bar
Top