Reverse channel rack: 224369xxxx

Photos

Reverse Flange rack Image

Drawings

ISO
Views
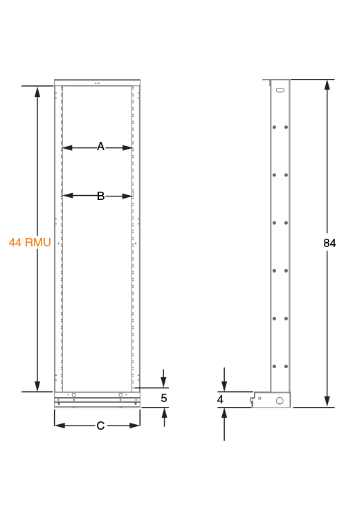
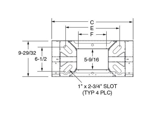
Reference Dimensional Table
Rack Width A B C D E
19″ 17-3/4″ 18-5/16″ 21-7/8″ 14-7/64″ 8-3/8″
23″ 21-3/4″ 22-5/16″ 25-7/8″ 18-7/64″ 12-3/8″

Note:

This 7′–0″ Seismic version meets the earthquake criteria (Seismic Zone 4) of Telcordia Document GR-63-core, issue 1, sections 4.4 and 5.4, when loaded with 460 pounds to simulate rack mounted equipment.

Downloads

Sales Sheet
 footprint

Ordering Info

Reverse Channel Ordering Table
Part Number Rack Width Top Angle Hole Spacing
2243690147 19″ Yes EIA-Wide
2243690247 19″ Yes EIA-Universal
2243691147 19″ No EIA-Wide
2243691247 19″ No EIA-Universal
2243695147 23″ Yes EIA-Wide
2243695247 23″ Yes EIA-Universal
2243696147 23″ No EIA-Wide
2243696247 23″ No EIA-Universal
Stock list
Item QTY Description
1 2 12-24 x 3/8 Tri-lobe Hex Head
2 1 Front Guard Rail Cover
3 1 Seismic Bay
4 4 Seismic Washers
Top